COCOCUBE KUGAHARA (久が原)

物件価格(税込)
520,000,000円
表面利回り
3.8%
「城南・大田区」の収益一棟RCマンションをご紹介します。東急池上線「久が原」駅から徒歩1分。駅前商店街の一角に位置しており、1階に店舗が入居する好立地の収益物件です。
POINT
東急池上線 「久が原」駅徒歩1分の好立地
池上線はJR山手線「五反田」駅・JR京浜東北線「蒲田」駅へ接続 通勤通学の需要が高い路線
駅前商店街の一角 1階は接骨院が賃貸中
大田区の中でも田園調布や山王と並ぶ人気の高級住宅街
1R~1LDKまで、5種類の間取りプランで幅広い賃貸ニーズに対応
現在満室稼働中。購入後すぐ実利回りとして賃料収入を得ることが可能です
2024年3月竣工の一棟RCマンション。RCは法定耐用年数47年で好条件の融資に期待
好立地の長期保有資産、相続税対策で収益物件をお探しの方に特にお薦めです
物件概要
物件名
所在地
交通
東急池上線「久が原」駅 徒歩 1分
地積
延床
構造
竣工
間取り
戸数
住居13戸+店舗1区画
取引態様
価格(税込)
利回り
主な設備・仕様
宅配ボックス/エントランスオートロック/防犯カメラ(共用部)/ダブルロックディンプルキー/モニター付インターホン/IHクッキングヒーター/エアコン/オープンクローゼット/独立洗面台/バス・トイレ別(温水洗浄便座)/浴室乾燥機(101・4号室のみ)/室内洗濯機置場/室内物干し/LED照明/姿見鏡/玄関収納/クローゼット(4号室のみ)/インターネット光(入居者にて加入要)/BS・CS110°(有料チャンネルは入居者にて加入要)
周辺エリア・アクセス情報
最寄りは東急池上線の「久が原」駅(徒歩1分)。城南エリアのローカル線ながら、JR山手線「五反田」駅とJR京浜東北線「蒲田」へ直結するアクセスの良さで、通勤通学の足として高い賃貸需要を維持しています。また、新幹線の停車駅である品川へ最短23分(蒲田駅で京浜東北線に乗り換え)、国際線が乗り入れる羽田空港第三ターミナルへも最短35分(蒲田駅下車、京急蒲田駅経由)など、国内外の拠点へアクセスが容易な好立地です。
※各駅への所要時間は平日のもので、時間帯によって異なります。また、乗換・待ち時間を含みます。(2026年2月ジョルダン調べ)

駅から伸びる商店街(ライラック通り久が原)の一角。正面には大型スーパーもあり、高い生活利便性を誇ります。


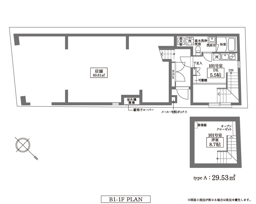
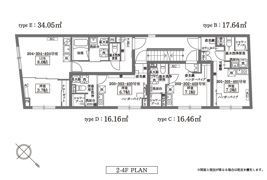
間取り
コンパクトな1Rからメゾネットタイプの1DK、南側に面した1LDKなど5タイプの間取りを用意。幅広いライフスタイルに対応しています。1階には、駅近立地を生かして店舗を設置しました。


設備・仕様
賃貸住宅では必須となった防犯カメラ、ダブルロックディンプルキーなどセキュリティに配慮した設備を選定。新築時だけでなく永続的なリーシングに必要な「快適な居住性」と収益物件としての「維持管理コスト」の最適バランスを追求しています。

外観写真・室内写真
万一成約済みの際はご容赦ください
取引態様:売主
引渡:相談
広告更新日:2026年5月12日
次回更新予定日:2026年5月26日
北辰不動産株会社 東京都知事免許(16)第6864号
公益社団法人東京都宅地建物取引業協会加盟
公益社団法人首都圏不動産公正取引協議会加盟
不動産投資をご検討でしたら
お気軽にご相談ください
0120-201-531
入居者様・空室状況については【こちら】からお問合せください
受付時間 平日9:30~17:30
定休日 土日祝
入居者様・空室状況については【こちら】から



